3-izbový byt na predaj v lokalite Šahy v okrese Levice
Čiastočne zrekonštruovaný 3-izbový byt s balkónom v top lokalite, Šahy
Kontaktujte nás ešte dnes na +421 944 555 852 Mgr Daniel Koman MBA RSc a dohodnite si obhliadku!
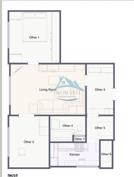
• Ponúkame na predaj priestranný a svetlý 3-izbový byt s úžitkovou plochou 62,23 m², situovaný v jednej z najžiadanejších lokalít mesta Šahy na ulici M. R. Štefánika.
• Byt prešiel čiastočnou rekonštrukciou, ktorá zahŕňa výmenu okien za plastové. Dispozícia pozostáva zo vstupnej chodby, kúpeľne, samostatnej jedálne prepojenej s kuchyňou, obývacej izby a ďalších dvoch nepriechodných izieb. K bytu prislúcha balkón.
• Bytový dom je zateplený, čo zaručuje nižšie mesačné náklady a tepelný komfort.
• Ulica M. R. Štefánika je známa výbornou občianskou vybavenosťou. V pešej dostupnosti sa nachádza škola, škôlka aj nákupné centrá.
• Tento byt je ideálnou voľbou pre rodinu hľadajúcu bezpečné bývanie v centre diania. Kontaktujte nás ešte dnes na +421 944 555 852 a dohodnite si obhliadku!
Podrobné informácie
Poloha nehnuteľnosti na mape
M R Štefánika, Šahy, Levice, Slovensko




